Start verkoop bouwkavels Wellerlooi
De verkoop van bouwkavels in het project Droogstal in Wellerlooi is begonnen. Aansluitend aan
fase 1, de Vliespas, wordt fase 2 gerealiseerd. De kavels hebben verschillende afmetingen en
prijsklassen. U kunt hier een woning op een ruime kavel en in een landelijke setting bouwen, maar
er is ook ruimte om samen een 2-onder-één-kap kap woning te bouwen of om samen op 1 locatie
een blok van 3 rijwoningen te bouwen. Het karakter van de wijk sluit aan bij fase 1.
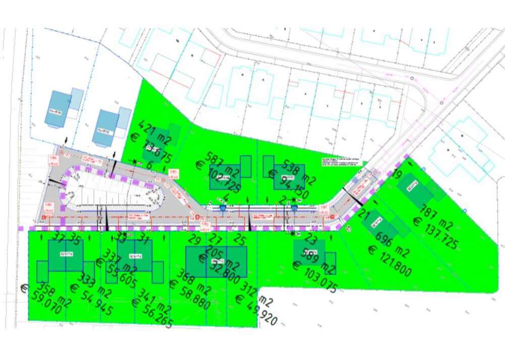
In eerste instantie worden 13 kavels verkocht. Daarvan zijn er zes bestemd voor een vrijstaande
woning. Deze kavels variëren in grootte van 421 m2 tot 787 m2. De verkoopprijzen variëren van € 73.675,- tot € 137.725,- exclusief 21% BTW. Ook is er ruimte voor vier 2-onder-één-kap woningen. De kavels variëren in grootte van 333 m2 tot 358 m2, de verkoopprijzen van € 54.945,- tot € 59.070,- exclusief 21% BTW.
Tot slot is er ruimte voor drie kavels voor een rijwoning. De kavels variëren in grootte van 205 m2
tot 368 m2. De verkoopprijzen variëren van € 32.800,- tot € 58.880,- exclusief 21% BTW.
Meer informatie over het bestemmingsplan is te vinden via de site www.ruimtelijkeplannen.nl Zoek bij
plannen op Vliespas Wellerlooi.
U kunt zich sinds inschrijven voor een kavel via www.bergen.nl/bouwkavelswellerlooi Daar staat ook een duidelijke plattegrond en meer informatie over de voorwaarden voor inschrijving. Het inschrijfformulier moet (volledig ingevuld en ondertekend) vóór 21 oktober 2021 bij Gemeente Bergen zijn ingediend. U kunt het formulier afgeven bij het Klant Contact Centrum of sturen naar: Gemeente Bergen, t.a.v. verkoop
bouwkavels Wellerlooi, postbus 140, 5854 ZJ Bergen L.
Vragen of meer informatie? Neem dan contact op met het Klant Contact Centrum, (0485) 34 83
83 of 14 0485. Vraag naar Raymond Kater.








